Trilocale in vendita

Rivoli, Via roma - Centro Storico
€ 214.000
3 locali 3 locali
77 Mq 77 Mq
1 bagno 1 bagno

Trilocale in vendita

Rivoli, Via roma - Centro Storico

Descrizione annuncio

CENTRO STORICO - Nuova reralizzazione - Possibilità di detrazioni fiscali

All’interno di una palazzina in fase di completa ristrutturazione, proponiamo in vendita appartamento realizzato con attenzione ai dettagli e alla funzionalità degli spazi.

L’immobile ha il riscaldamento autonomo e garantisce comfort abitativo e contenimento dei consumi. Predisposizione per l’impianto di climatizzazione.

Le soluzioni tecniche adottate consentiranno di mantenere bassissime spese di gestione, rendendo questa proposta particolarmente interessante sia per chi è alla ricerca di una prima abitazione moderna ed efficiente, sia per chi desidera effettuare un investimento sicuro e facilmente locabile.

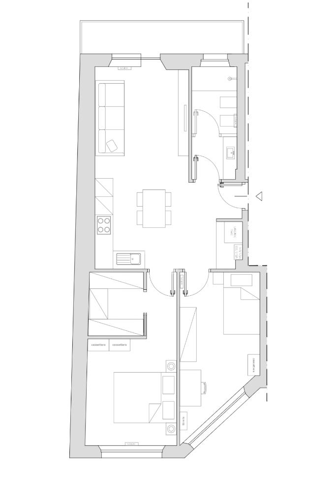
La distribuzione interna è studiata per offrire ambienti ben organizzati e luminosi: l’ingresso si apre su un accogliente soggiorno con angolo cottura, valorizzato dalla presenza di un balcone che dona luce naturale e uno sfogo esterno ideale per momenti di relax. La zona notte comprende due camere da letto, adatte sia a un nucleo familiare sia a chi necessita di uno studio o stanza ospiti. Il bagno, rifinito in chiave contemporanea, è completo di box doccia. Completa la proprietà una cantina, utile come spazio accessorio e di deposito.

Soluzione ideale per chi desidera un immobile nuovo, efficiente e pronto da vivere.

La disposizione interna prevede:

Ingresso su luminoso soggiorno con angolo cottura

Due camere da letto, di cui una con cabina armadio

Bagno finestrato con ampio box doccia

Cantina di pertinenza

Soluzione ideale per chi desidera un’abitazione moderna, efficiente e pronta da vivere, in un contesto curato e riqualificato.

Il presente annuncio non costituisce vincolo contrattuale.

Mostra tutto

Nelle vicinanze

Trasporto pubblico Trasporto pubblico
Alpignano
Alpignano
2,6 Km
Castello di Rivoli Cap.
Castello di Rivoli Cap.
150 m
San Bartolomeo
San Bartolomeo
330 m
Ricariche auto elettriche Ricariche auto elettriche
EnelX EVA+ Centro Commerciale Auchan Rivoli
1,4 Km
Mercatò Rivoli
2,7 Km
Mercatò Rivoli | EnelX fast
2,8 Km
Villarbasse Rocciavrè | ENELX
2,9 Km
Scuole Scuole
Scuola Secondaria di primo grado-I.C. "Giacomo Matteotti"
350 m
Istituto Salotto e Fiorito
410 m
Liceo scientifico, linguistico, scienze umane Charles Darwin
640 m
Scuola Primaria Don Milani
650 m
Istituto di Istruzione Superiore Statale Oscar Romero
680 m
Farmacia Farmacia
Farmacia Comunale
520 m
Farmacia
600 m
Maestra
610 m
Farmacia Internazionale
940 m
Centrale
960 m
Ospedali Ospedali
Ospedale di Rivoli - Emergency
1,6 Km
Ospedale di Rivoli
1,6 Km
Ospedali
3,0 Km
Supermercati Supermercati
Crai
10 m
Naturasi
920 m
E'
1,0 Km
Coop
1,1 Km
iN's
1,3 Km
Negozi Negozi
Panetteria Latteria Salumi Formaggi
420 m
Non solo mollica
430 m
Panificio
460 m
Vialescarpe
550 m
Le Fornarine
610 m
Bar Bar
Il frullo
380 m
Snack Bar
420 m
Bar
440 m
La Corona
580 m
Macchiato D'inchiostro
590 m
Ristoranti Ristoranti
La Tavernetta
370 m
Bistrot del Castello
410 m
Cipponet
450 m
In Famiglia
510 m
El Born
570 m
Mostra tutto

Caratteristiche

Rif.:
61057088
Piano:
1 di 1 (Piano alto)
Balconi:
1
Camere da letto:
2
Arredamento:
Assente
Condizionamento:
Predisposizione impianto
Mostra tutto
Prezzo Prezzo
€ 214.000
Rata mutuo Rata mutuo
€ 999 / mese
Spese annue Spese annue
€ 400
Proponi il tuo prezzoProponi il tuo prezzo

Classe Energetica

B
B
B
B
B
B
B
B
B
EP globale non rinnovabile:
123.00 kW h/m² anno
EP globale rinnovabile:
584.00 kW h/m² anno
EP invernale del fabbricato:
EP estiva del fabbricato:
Anno di costruzione:
1970
Riscaldamento:
Autonomo
Tipo impianto:
A radiatori
Tipo alimentazione:
Metano

Ti interessa visionare l'immobile?

Fissa un appuntamento  Fissa un appuntamento

Richiedi informazioni

Clicca su Leggi per aprire l'informativa
* Questi campi sono obbligatori

Calcola il tuo mutuo

Semplice e senza impegno
Anticipo

( % )
Mutuo

( % )

pochi semplici passi

inserisci i tuoi dati
Questionario completato
Grazie per aver richiesto un appuntamento senza impegno con un nostro Consulente del Credito e Assicurativo.

Hai inserito correttamente tutti i dati necessari e a breve riceverai una e-mail con un link da convalidare per inviare i tuoi dati.
Affiliato
Studio Castello Sas
Corso Susa, 44 10098 Rivoli (TO)

Il nostro staff


  • Marco Allegri
    Affiliato

  • Elena Fecchio
    Coordinatrice

  • Alessandro Frassi
    Affiliato

  • Gabriele Coppola
    Collaboratore

  • Luca Giuliani
    Collaboratore
Corso Susa, 44 10098 Rivoli (TO)
Zona: Rivoli
Mostra su mappa
Orari: dal lunedì al venerdì : 9.00 - 12.30 / 15.00 - 19.30; sabato: 9.00 - 12.30 / 15.00 - 18.00
Affiliato
Studio Castello Sas
Corso Susa, 44 10098 Rivoli (TO)

2026 Tecnocasa Franchising S.p.A. - P. IVA 08365160152 - Via Monte Bianco 60/A 20089 Rozzano (MI). Ogni agenzia ha un proprio titolare ed è autonoma. Privacy policy | Policy utilizzo | Cookie policy