5 locali in vendita

Rivoli, Via pasubio - Borgo Nuovo
€ 249.000
5 locali 5 locali
150 Mq 150 Mq
2 bagni 2 bagni

5 locali in vendita

Rivoli, Via pasubio - Borgo Nuovo

Descrizione annuncio

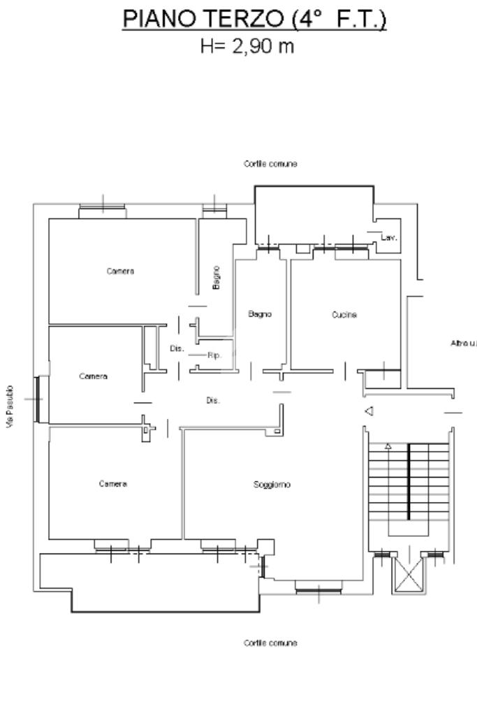
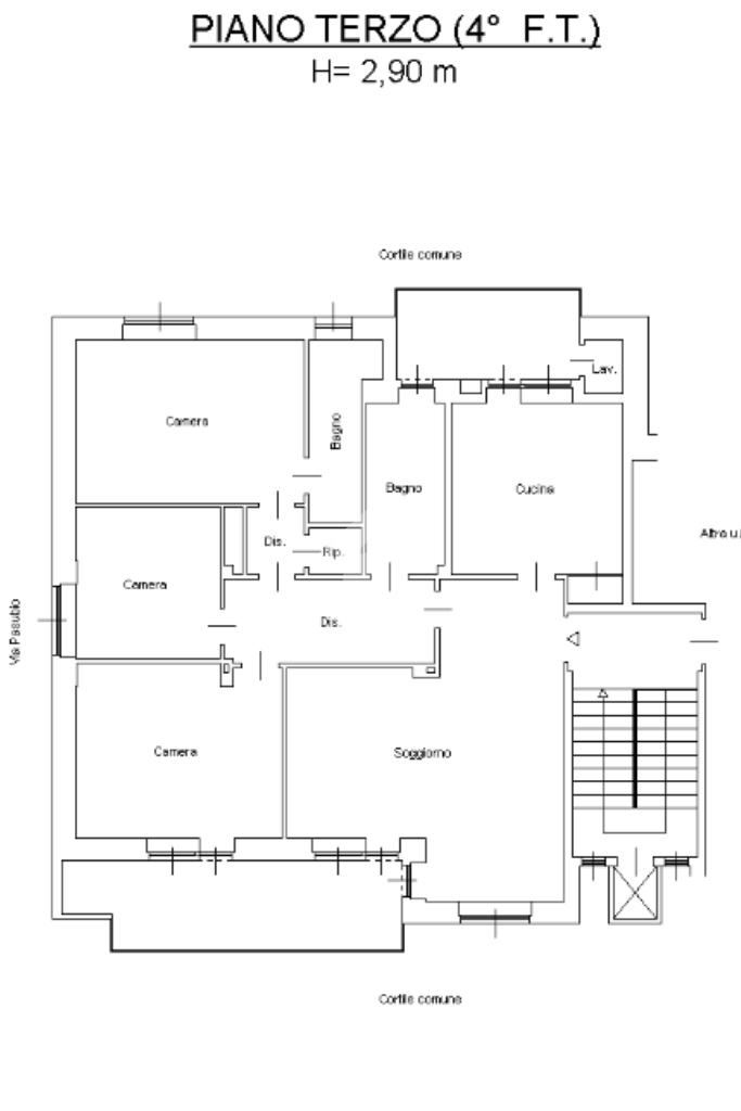
APPARTAMENTO RISTRUTTURATO IN ZONA TRANQUILLA A RIVOLI

Se stai cercando la casa dei tuoi sogni, non perdere l'opportunità di scoprire questo ampio e luminoso appartamento situato nel cuore di Rivoli, in una zona tranquilla ma ben collegata al centro e circondata da splendide aree verdi.

Situato al terzo ed ultimo piano, questo immobile ristrutturato è una vera gemma. La sua esposizione favorevole e la libertà su tre lati lo rendono incredibilmente luminoso e accogliente.

Entrando tramite portoncino blindato di ultima generazione, sarai accolto da un'ampia zona giorno che si affaccia su un grazioso terrazzino, perfetto per goderti momenti di relax all'aperto. La cucina abitabile, dotata di un secondo balcone che si affaccia sul cortile interno.

La zona notte, accessibile tramite un spazioso disimpegno, comprende tre camere da letto:di cui due matrimoniali e una cameretta, ideale per un ufficio o una stanza dei giochi. Inoltre, sono presenti due servizi entrambi finestrati, per garantire il massimo comfort a te e alla tua famiglia.

L'appartamento dispone anche di impianto di condizionamento per garantirti il massimo del comfort. Le serrande sono tutte quante automatizzate A completare questa offerta, una comoda cantina e la possibilità di acquistare un ampio box auto con serranda automatica nello stesso stabile al prezzo di 20.000 euro.

Non lasciarti sfuggire questa occasione unica! Per ulteriori informazioni o per prenotare una visita, contattaci senza esitazione. Ti aspettiamo!

Nota importante: Questo annuncio non rappresenta un vincolo contrattuale.

Mostra tutto

Nelle vicinanze

Trasporto pubblico Trasporto pubblico
Alpignano
Alpignano
2,2 Km
De Gasperi N.24
De Gasperi N.24
160 m
De Gasperi N.69
De Gasperi N.69
180 m
Ricariche auto elettriche Ricariche auto elettriche
EnelX EVA+ Centro Commerciale Auchan Rivoli
880 m
Mercatò Rivoli
2,9 Km
Mercatò Rivoli | EnelX fast
3,0 Km
Scuole Scuole
Scuola Secondaria di primo grado-I.C. "Giacomo Matteotti"
440 m
Scuole
710 m
Scuola Primaria "Clementina Perone"
730 m
Istituto Salotto e Fiorito
800 m
Scuola Primaria Don Milani
930 m
Farmacia Farmacia
Farmacia Comunale
130 m
Farmacia Internazionale
690 m
Maestra
820 m
Farmacia
940 m
Farmacia Reale
1,0 Km
Ospedali Ospedali
Ospedale di Rivoli - Emergency
2,1 Km
Ospedale di Rivoli
2,1 Km
Ospedali
2,5 Km
RSA Residenza al Castello
2,9 Km
Supermercati Supermercati
Crai
520 m
Naturasi
650 m
iN's
890 m
Coop
1,2 Km
E'
1,2 Km
Negozi Negozi
Panetteria Latteria Salumi Formaggi
350 m
Market
610 m
Panificio
710 m
Intimo Fernanda
730 m
Vialescarpe
770 m
Bar Bar
Snack Bar
340 m
Zanzibar
570 m
Bar
700 m
Il frullo
710 m
Macchiato D'inchiostro
820 m
Ristoranti Ristoranti
El Born
150 m
Bistrot Rigatony
480 m
Pizzorante
520 m
Il Pacchero
610 m
Cipponet
710 m
Mostra tutto

Caratteristiche

Rif.:
61166380
Piano:
3 di 3 con ascensore (ultimo Piano)
Box:
1
Posti auto:
1
Balconi:
1
Terrazzi:
1
Mostra tutto
Prezzo Prezzo
€ 249.000
Prezzo box Prezzo box
€ 20.000
Rata mutuo Rata mutuo
€ 1.174 / mese
Spese annue Spese annue
€ 1.200
Proponi il tuo prezzoProponi il tuo prezzo

Classe Energetica

D
D
D
D
D
D
D
D
D
EP invernale del fabbricato:
EP estiva del fabbricato:
Anno di costruzione:
1986
Riscaldamento:
Centralizzato
Tipo impianto:
A radiatori
Tipo alimentazione:
Metano

Ti interessa visionare l'immobile?

Fissa un appuntamento  Fissa un appuntamento

Richiedi informazioni

Clicca su Leggi per aprire l'informativa
* Questi campi sono obbligatori

Calcola il tuo mutuo

Semplice e senza impegno
Anticipo

( % )
Mutuo

( % )

pochi semplici passi

inserisci i tuoi dati
Questionario completato
Grazie per aver richiesto un appuntamento senza impegno con un nostro Consulente del Credito e Assicurativo.

Hai inserito correttamente tutti i dati necessari e a breve riceverai una e-mail con un link da convalidare per inviare i tuoi dati.
Affiliato
Studio Castello Sas
Corso Susa, 44 10098 Rivoli (TO)

Il nostro staff


  • Marco Allegri
    Affiliato

  • Elena Fecchio
    Coordinatrice

  • Alessandro Frassi
    Affiliato

  • Gabriele Coppola
    Collaboratore

  • Luca Giuliani
    Collaboratore
Corso Susa, 44 10098 Rivoli (TO)
Zona: Rivoli
Mostra su mappa
Orari: dal lunedì al venerdì : 9.00 - 12.30 / 15.00 - 19.30; sabato: 9.00 - 12.30 / 15.00 - 18.00
Affiliato
Studio Castello Sas
Corso Susa, 44 10098 Rivoli (TO)

2026 Tecnocasa Franchising S.p.A. - P. IVA 08365160152 - Via Monte Bianco 60/A 20089 Rozzano (MI). Ogni agenzia ha un proprio titolare ed è autonoma. Privacy policy | Policy utilizzo | Cookie policy